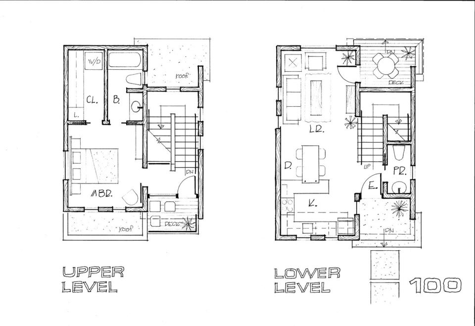
Floor Plan 100


Includes Assigned Covered Parking + Storage

from $299,000  

Livable/ConditionedArea Lower

  • Level = 467 Sq Ft
  • Upper Level =326 Sq Ft
  • TOTAL: 793 Sq Ft

Exterior Decks/Patios:

  • Lower Level = 44 Sg Ft
  • Upper Level = 37 Sq Ft
  • TOTAL: 81 Sq Ft

© 2025. Wee Hollow | All rights reserved
114 Wee Hollow Drive, Camp Verde, AZ 86322
WEBSITE DESIGN: Studio 5